项目图库

萧山许宅

萧山许宅

  • 建设地址:萧山新街
  • 建筑风格:高端定制,法式,欧式
  • 占地尺寸:15.9X9.1
  • 结构形式:框架
  • 占地面积:129.9㎡
  • 毛坯造价:50.0万


 项目概况 


本项目位于杭州萧山新街镇,总建筑面积389.55㎡,其中一层建筑面积为129.85㎡,二层建筑面积为129.85㎡,三层建筑面积129.85㎡。

01.jpg

▲正立面图



 户型设计 


1F.jpg

▲一层平面图

一层:门厅、堂前、老人房、餐厨房、公卫;

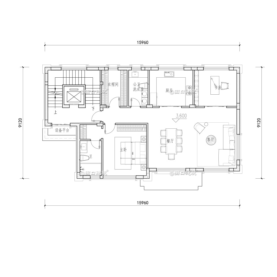
2F.jpg

▲二层平面图

二层:一个套房、客厅、餐厅、厨房、书房、公卫、衣帽间;

3F.jpg

▲三层平面图

三层:一个套房、衣帽间,儿童房、书房、茶室、内阳台;




 造型设计 


01.jpg

▲正立面透视图

02.jpg

▲东南角透视图

06.jpg05.jpg

▲西立面透视图

07.jpg

▲西北角透视图

08.jpg

▲鸟瞰图



END











  • 看不清楚,换一张
×
×
盖房信息
看不清楚,换一张