项目图库

余杭竺宅

余杭竺宅

  • 建设地址:杭州余杭
  • 建筑风格:高端定制,新中式
  • 占地尺寸:12.3X13.2
  • 结构形式:框架
  • 占地面积:139.9㎡
  • 毛坯造价:50.0万


 项目概况 


本项目位于杭州余杭,总建筑面积407.59㎡,其中一层建筑面积为139.88㎡,二层建筑面积为139.88㎡,三层建筑面积127.83㎡。

02.jpg

▲正立面图



 户型设计 


1F.jpg

▲一层平面图

一层:门厅、堂屋、挑空客厅、品茗区、大餐厅(厨房位于附房)、公卫、套房;

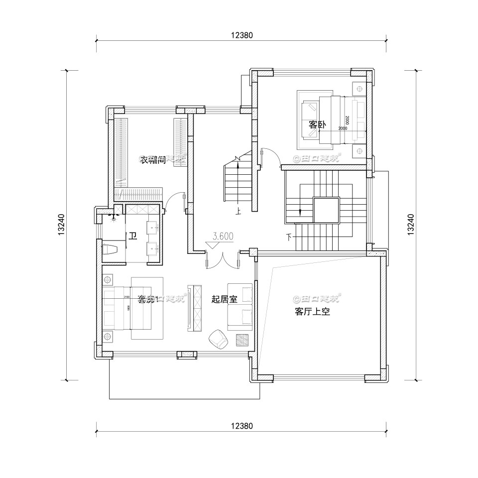
2F.jpg

▲二层平面图

二层:一个套房、一个客卧;

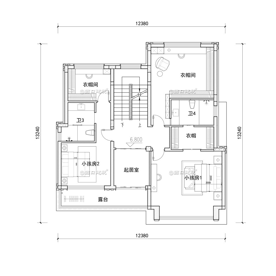
3F.jpg

▲三层平面图

三层:两个套房、衣帽间,起居室、露台;




 造型设计 


02.jpg

▲正立面透视图

06.jpg

▲西南角透视图

01.jpg

▲东南角透视图

05.jpg

▲北立面透视图

04.jpg

▲鸟瞰图



END










  • 看不清楚,换一张
×
×
盖房信息
看不清楚,换一张