项目图库

台州丁宅

台州丁宅

  • 建设地址:台州天台
  • 建筑风格:高端定制,欧式
  • 占地尺寸:10.50X12.50
  • 结构形式:框架
  • 占地面积:131.3㎡
  • 毛坯造价:50.0万


 项目概况 

本项目位于台州天台县,总建筑面积377.91㎡,其中一层建筑面积为131.25㎡,二层建筑面积为131.25㎡,三层建筑面积115.41㎡。

04.jpg

▲东南角鸟瞰图



 户型设计 


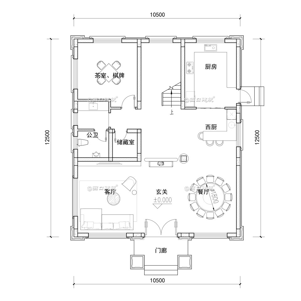
1F.jpg

▲一层平面图

一层:门廊、玄关、客厅、餐厅、中西厨房、储藏室、茶室棋牌室、公卫;

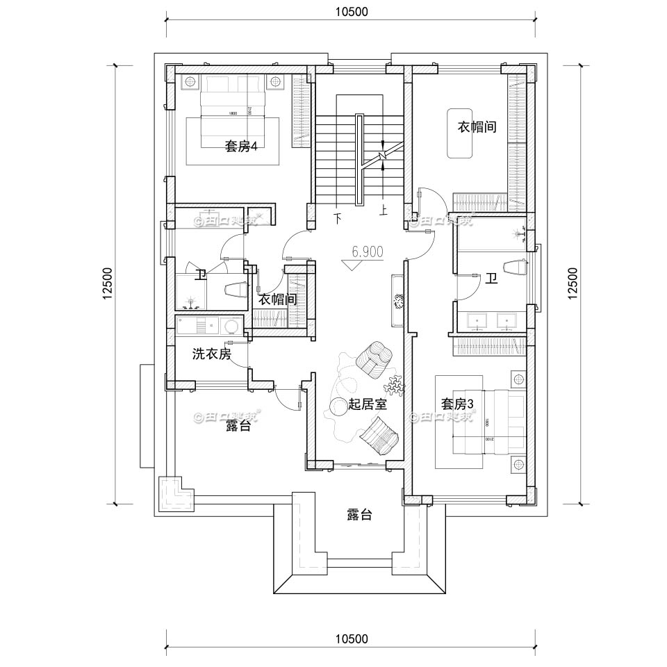
2F.jpg

▲二层平面图

二层:两个套房、活动室、起居室、阳台;     3F.jpg

▲三层平面图

三层:大小两个套房、起居室、露台;




 造型设计 


04.jpg

▲东南角鸟瞰图

01.jpg

▲正立面透视图

03.jpg

▲东南角透视图

06.jpg

▲西南角透视图

07.jpg

▲东北角透视图


END






  • 看不清楚,换一张
×
×
盖房信息
看不清楚,换一张